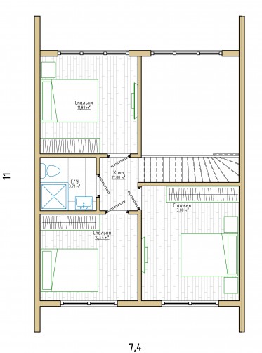
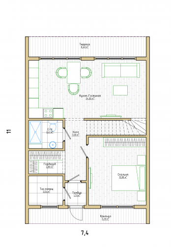
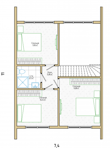
Прекрасный 2-этажный дом в стиле Барнхаус площадью 129м2. Этот дом является истинным фаворитом наших клиентов. На первом этаже большая кухня-гостиная со вторым светом, спальня и гардеробная, с/узел и тех. помещения. Планировки 2-го этажа могут быть разные: с 3-мя спальнями и с/узлом без второго света, с 3-мя спальнями и с/узлом со вторым светом, с комнатой лофт и 2-мя спальнями и с/узлом.
Общая площадь дома 129м2
Теплый контур 114м2
Кухня-гостиная – 1
Спальня – 4
Гардеробная – 1
С/узел – 2
Тех. помещение – 1
Терраса - 1
В стандартную комплектацию входит:
-переливной септик на 6м3.
-все инженерные коммуникации, включая теплый пол
-идеально ровный пол (п/сухая стяжка)
-идеально ровные стены (гипсокартон),
-фасад и кровля КЛИК ФАЛЬЦ + планкен (скрытый крепеж)
-5-ти камерные окна VЕКА с хорошей фурнитурой и мультифункциональным покрытием.
Ждем ваши заявки! С удовольствием воплотим вашу мечту в жизнь!
Выбор местоположения
Мы свяжемся с Вами в течение дня.