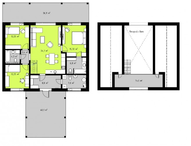
Дом функционально разделен на зоны кухни-гостиной, спального блока «детские» и спального блока «мастер спальни». Кухня-гостиная расположена в середине дома. Парковка для авто выполнена под навесом, рядом с главным входом в дом. Терраса находится под одной крышей с домом. Дом сдается в отделке white box. Гипсовая штукатурка Knauf под обои.
Дом: 118,1 кв.м (полезная площадь, без террасы и крыльца):
Комплектация дома
- Фундамент: ребристая плита;
- Стены: наружные - автоклавный газобетон (Сибит) 300мм + утеплитель 100мм. Далее выполнена штукатура. Внутренние несущие стены - автоклавный газобетон (Сибит) 300мм.
Перекрытия: Монолитные;
- Кровля: Стропильная система обработана антисептиком. Профлист 0,45 мм. Утепление 200 мм;
- Дверь входная: Тëплый алюминий с терморазрывом и тонированным стеклом;
- Окна: Энергоэффективный 5-ти камерный профиль Veka, c замкнутым армированием, стеклопакет 40 мм. Фурнитура Winkhaus;
- Электромонтаж: провода использованы ГОСТ ВВГнг LS. Все магистрали в гофре, на каждую комнату установлен отдельный дифференциальный автомат. Заземление. В щите есть реле контроля напряжения, которое защитит бытовую технику от нежелательных перепадов напряжения;
- Отопление: выполнено трубой stout 16х2 металлопластик, выходы под радиаторы с лучевым способом обвязки. Нет соединений в полу цельная труба от радиатора до коллектора. Тёплые полы выполнены с шагом 15 см в каждой комнате отдельный контур, что позволяет регулировать температуру в каждом помещении по разному. Электрический котел и бак теплообменника выполнен из нержавеющей стали, так же как и тэны;
- Водопровод выполнен по технологии Axiopress с использованием трубы и фитингов PEXa. Реализована циркуляция горячей воды, что позволяет практически сразу пользоваться горячей водой. Вся система перед заливкой отпрессована давлением 8 бар;
- Вентиляция: Естественная;
- Канализация: Переливной септик объемом 7,5 м3;
- Пол: стяжка.
Выбор местоположения
Мы свяжемся с Вами в течение дня.