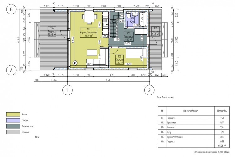
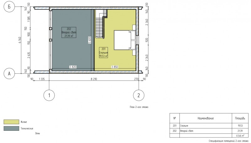
Деревянный 2- этажный дом с двухскатной крышей из 8 модулей. Открытая терраса- 25 м2. Панормное остекление. Второй свет в гостинной. Внутрення отделка- white box. Возможен вариант под ключ через партнеров. Отличное решение для гостевого дома или для небольшой семьи.
Выбор местоположения
Мы свяжемся с Вами в течение дня.