Кедр – это натуральный материал, который отличается высокой прочностью и долговечностью. Он также обладает прекрасными теплоизоляционными свойствами, что позволяет сохранять тепло в доме даже в самые холодные зимы.
Одним из главных преимуществ каркасного дома из кедра является его экологичность. Кедр не только прекрасно выглядит, но и обладает целебными свойствами. Он выделяет фитонциды, которые убивают бактерии и вирусы, а также способствуют улучшению качества воздуха в помещении.
В целом, каркасный дом из кедра – это отличный выбор для тех, кто ищет комфортное и экологичное жилье. Он прекрасно подойдет как для постоянного проживания, так и для временного использования, например, на даче.
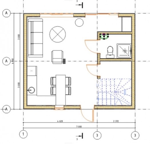
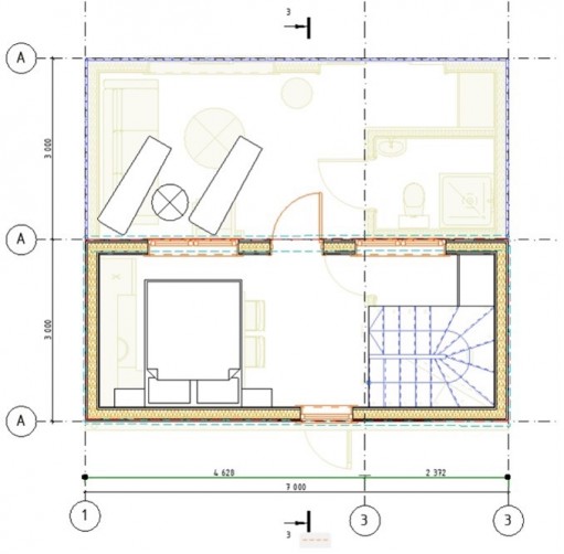
Выбор местоположения
Мы свяжемся с Вами в течение дня.