Одноэтажный дом с двускатной крышей, представляет собой классический вариант загородного дома. Двускатная крыша гармонично сочетается с окружающим ландшафтом, а деревянные вставки из лиственницы придают дому эстетичный вид.
Дом рассчитан на проживание семьи из 3-5 человек.
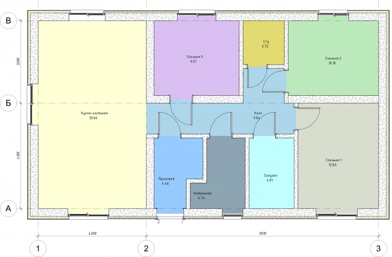
Планировка дома вмещает просторную кухню-гостиную с большими панорамными окнами. В доме три спальни и два санузла.
Фасад - декоративная штукатурка
Комплектация STANDART - 7 000 000 р.
Комплектация WHITE BOX - 8 450 000 р.
Фасад - облицовочный кирпич
Комплектация STANDART - 7 400 000 р.
Комплектация WHITE BOX - 8 850 000 р.
Выбор местоположения
Мы свяжемся с Вами в течение дня.